冈本app软件下载安装ios

EN

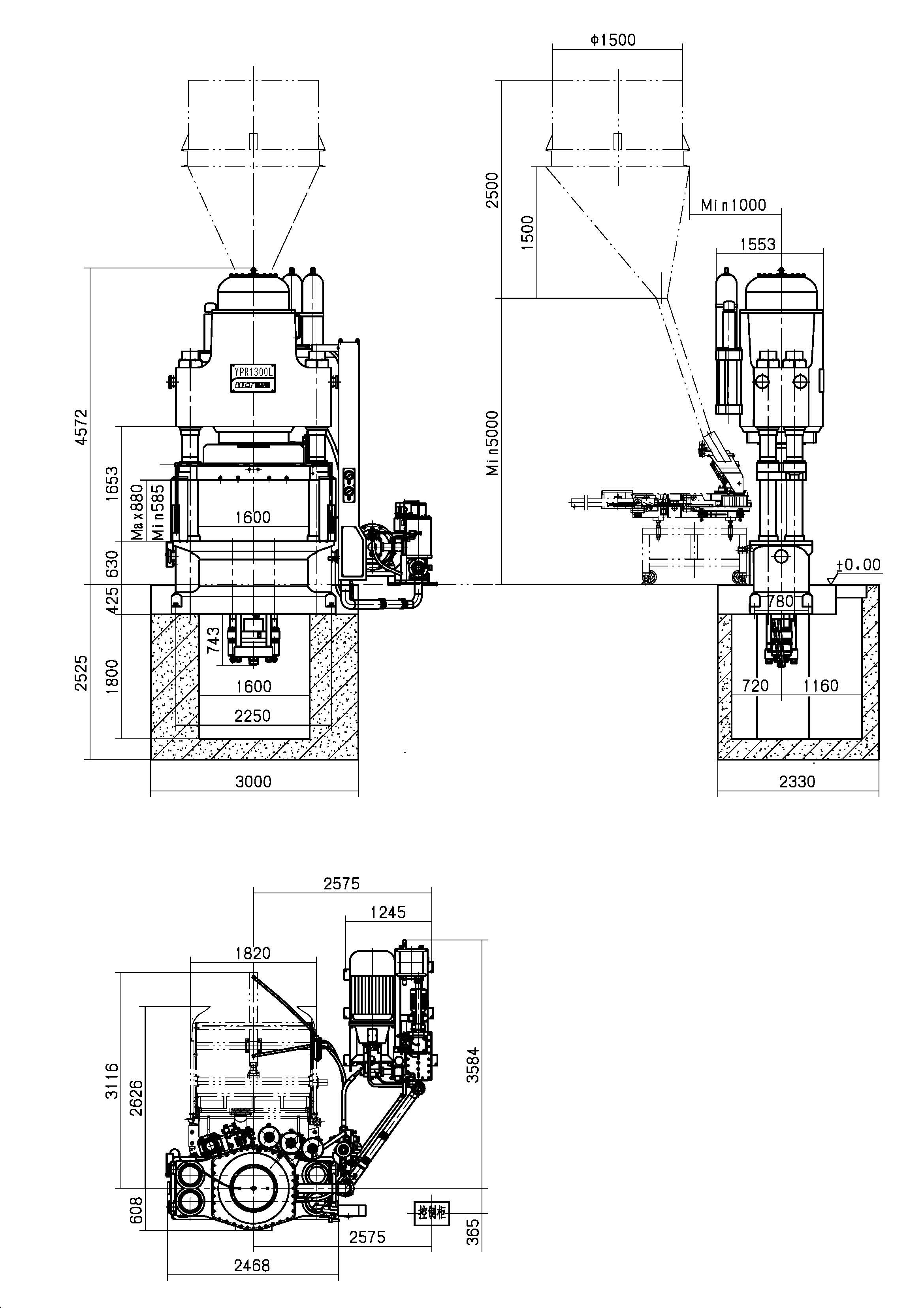
YPR1300L

適用(yong)產(chan)品:厚度(du)≤65mm,標磚、廣場磚、青磚等。

返回列表

技(ji)術參(can)數 布局圖(tu)


YPR1300L

技術參數表 TECHNICAL DATA

技術參數

TECHNICAL DATA

UNIT

YPR1300L

最大壓制力

Max. pressing force

kN

13000

最(zui)大脫(tuo)模力(li)

Max. ejecting force

kN

534

最大填料(liao)深度

Max. filling depth

mm

140

工(gong)作(zuo)周期(qi)加(jia)壓次(ci)數

Strokes per cycle

times

2-3

液(ye)壓(ya)系統最(zui)高壓(ya)力

Max. system pressure

MPa

33

裝機功率

Installed power

kW

118

左右立(li)柱間凈空

Span between columns

mm

1600

動梁工作面寬度(du)

Useful width of plunger

mm

600

動(dong)梁(liang)最大(da)行(xing)程

Max. plunger stroke

mm

295

壓縮空氣消耗量

Air consumption

m3/h 5bar

0.25

冷卻水消(xiao)耗量

Water consumption at 25

m3/h 25

18

液壓油容(rong)量

System oil capacity

L

1100

整機重量(liang)

Weight of the press

t

38

  • 咨詢電話0757-87336633

    地址:廣東省佛山(shan)市三水中心科技工業區C區25號

    郵箱(xiang):hlm@hltpress.com